Vous rêvez d’une maison moderne mais pensez que devenir propriétaire n’est pas encore à votre portée ?
Découvrez une opportunité exceptionnelle à Saint-Jean-Pla-De-Corts : une villa T4 neuve, lumineuse, avec jardin (15,90 m²), terrasse privative à l’étage, garage, et un dispositif de location-accession (PSLA) qui vous permet d’acheter progressivement… sans apport important et en toute sécurité.
Possibilité d’aller visiter le bien en cours de construction.
Une offre rare sur le secteur : village calme et convivial, proche du lac, de la nature et des commodités. Cadre de vie idéal à deux pas de Céret.
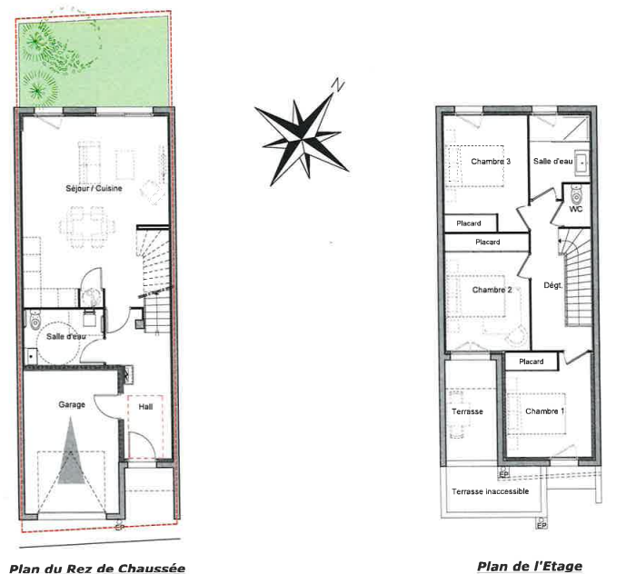
Découvrez cette villa T4 R+1 de 95,03 m², disponible en location-accession (PSLA), située dans un quartier calme et recherché de Saint-Jean-Pla-De-Corts.
Au rez-de-chaussée :
- Hall d’entrée : 8,92 m²
- Séjour – Salon – Cuisine ouverte : 32,46 m²
- Garage attenant : 16,50 m²
- Salle d’eau : 5,36m²
- Grande pièce de vie lumineuse ouvrant sur le jardin
À l’étage :
- Chambre 1 : 10,85 m²
- Chambre 2 : 11,93 m²
- Chambre 3 : 11,90 m²
- Salle d’eau : 5,56 m²
- WC indépendant : 1,40 m²
- Terrasse privative : 6,34 m²
- parfaite pour un café au soleil ou un moment de détente.
Les avantages de la location-accession :
- Exonération de la taxe foncière pendant 15 ans
- TVA à 5,5%
- Frais de notaires réduits
- Maison réellement clés en main
Contactez-nous par téléphone pour obtenir un rendez-vous avec un de nos conseiller et organiser une visite.


