Skip to content

Lavalette - Lot 13 - Location Accession

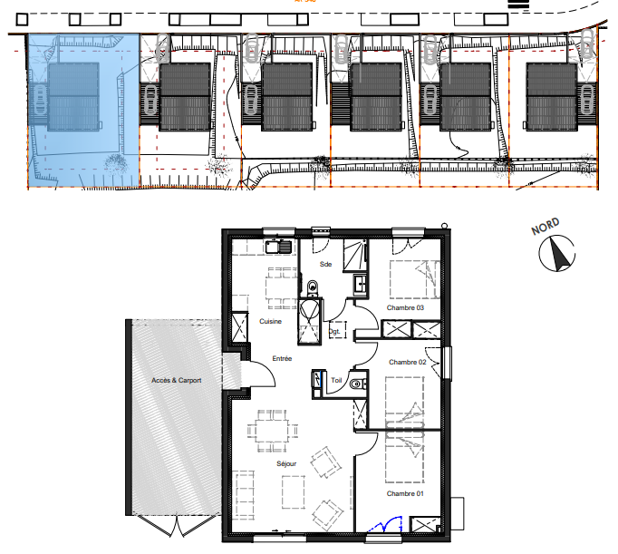
‱ Maison 81,70 mÂČ

‱ Terrain 500 mÂČ

219 500€

🏡 MAISON NEUVE À LAVALETTE (11290) EN LOCATION-ACCESSION ! 🌟

DĂ©couvrez “Fontvieille”, un programme de 6 villas en location-accession, situĂ©e à seulement quelques minutes de Carcassonne. ☀

✹ Maisons MARCOU vous propose cette magnifique villa de type T4 de 81,70 mÂČ en Location-Accession (PSLA) : une opportunitĂ© unique pour devenir propriĂ©taire en toute sĂ©rĂ©nitĂ©, avec de nombreux avantages !

Cette maison de plain pied dispose d’un jardin privatif ainsi que d’un garage de 25,73 mÂČ.

✅ ExonĂ©ration de taxe fonciĂšre pendant 15 ans
✅ TVA rĂ©duite Ă  5,5 % pour un prix d’achat plus attractif
✅ Frais de notaire rĂ©duits

👉 Devenez propriĂ©taire en toute sĂ©rĂ©nitĂ© avec Maisons MARCOU !
📞 Contactez-nous dĂšs maintenant pour plus d’informations et rĂ©server votre futur chez-vous !

Je souhaite acheter cette maison

Les avantages de la location / accession

5,5% de TVA au lieu de 20%

Exonération de la taxe fonciÚre : 15ans

Frais de notaire réduits

Maison réellement clés en mains

Téléchargez
notre catalogue

Explorez l’excellence architecturale des Maisons Marcou dans notre catalogue gratuit. TĂ©lĂ©chargez-le dĂšs maintenant pour dĂ©couvrir des modĂšles innovants et crĂ©er la maison de vos rĂȘves.

Vous pourriez aussi aimer

‱ Maison de 95,25 mÂČ
‱ Terrain de 99,5 mÂČ
239 900 €
‱ Maison de 95,03 mÂČ
‱ Terrain de 99,5 mÂČ
238 500 €
‱ Maison de 95,03 mÂČ
‱ Terrain de 99,5 mÂČ
238 500 €
‱ Maison de 95,03 mÂČ
‱ Terrain de 99,5 mÂČ
238 500 €
‱ Maison de 95,03 mÂČ
‱ Terrain de 99,5 mÂČ
238 500 €
‱ Maison de 95,03 mÂČ
‱ Terrain de 99,5 mÂČ
239 900 €

Vous souhaitez ĂȘtre rappelĂ©(e) ?

    Si vous ne souhaitez pas faire l’objet de dĂ©marchage par tĂ©lĂ©phone, vous avez la possibilitĂ© de vous inscrire gratuitement sur la liste d’opposition « Bloctel ». L’inscription est valable pour 3 ans. Pour en savoir plus, consultez le site internet www.bloctel.gouv.fr


    Informations supplémentaires :

    En utilisant ce formulaire vous autorisez Maisons Marcou à utiliser vos informations pour répondre à votre demande. Aucune donnée n'est cédée à des tiers.