đĄÂ MAISON NEUVE Ă LAVALETTE (11290) EN LOCATION-ACCESSION ! đ
DĂ©couvrez âFontvieilleâ, un programme de 6 villas en location-accession, situĂ©e à seulement quelques minutes de Carcassonne. âïž
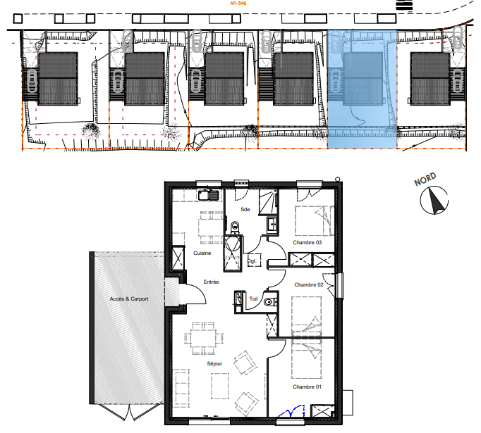
âšÂ Maisons MARCOU vous propose cette magnifique villa de type T4 de 81,70 mÂČ en Location-Accession (PSLA) : une opportunitĂ© unique pour devenir propriĂ©taire en toute sĂ©rĂ©nitĂ©, avec de nombreux avantages !
Cette maison de plain pied dispose dâun jardin privatif ainsi que dâun carport de 25,73 mÂČ.
â
 Exonération de taxe fonciÚre pendant 15 ans
â
 TVA rĂ©duite Ă 5,5 % pour un prix dâachat plus attractif
â
 Frais de notaire réduits
đ Devenez propriĂ©taire en toute sĂ©rĂ©nitĂ© avec Maisons MARCOU !
đ Contactez-nous dĂšs maintenant pour plus dâinformations et rĂ©server votre futur chez-vous !



